Home About Us Services Clients Projects Opportunities News Contact Us

Tel: 0117 373 1659

info@d2planning.co.uk


© copyright:: D2 Planning Limited 2013



D2 Planning Limited. Suite 3, Westbury Court, Church Road, Westbury on Trym, Bristol, BS9 3EF
Registered Office: 2 Chesterfield Buildings, Westbourne Place, Clifton, Bristol, BS8 1RU. Registered in England: 5309357



Residential


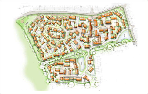
D2 Planning acting on behalf of Barratt Homes Bristol successful obtained planning permission at appeal for 220 dwellings on a greenfield site outside the settlement limits of Frampton Cottrell, South Gloucestershire.


The Inspector agreed with our assessment of residential land availability in the District that a 5 year supply of deliverable sites could not be demonstrated by the Council.  The site was readily available and there were no constraints to it being developed immediately and making a contribution towards open market and affordable housing needs in the District.


The Inspector also agreed with us that the site represented a highly sustainable location for additional residential development as the settlement has a range of shops, services and facilities which could be reached by a range of transport modes.  The site is nearing completion


Other successful projects include:

i) Land at north east of Secmanton Lane, Dawlish;

ii) Land at Battle Close/Harris Way, Lee Mill;

iii) Land at Dove Hill, Stonehouse, Stroud;

iv) Land at New Road, Teignmouth;

v) Barton Street, Gloucester;

vi) Speedwell, Bristol;

vii) Roman Road, Hereford;

viii) Unity Park, Plymouth